Описание
Организация Фокус представя тристаен апартамент с двор в нов жилищен комплекс на северния бряг на р. Марица.
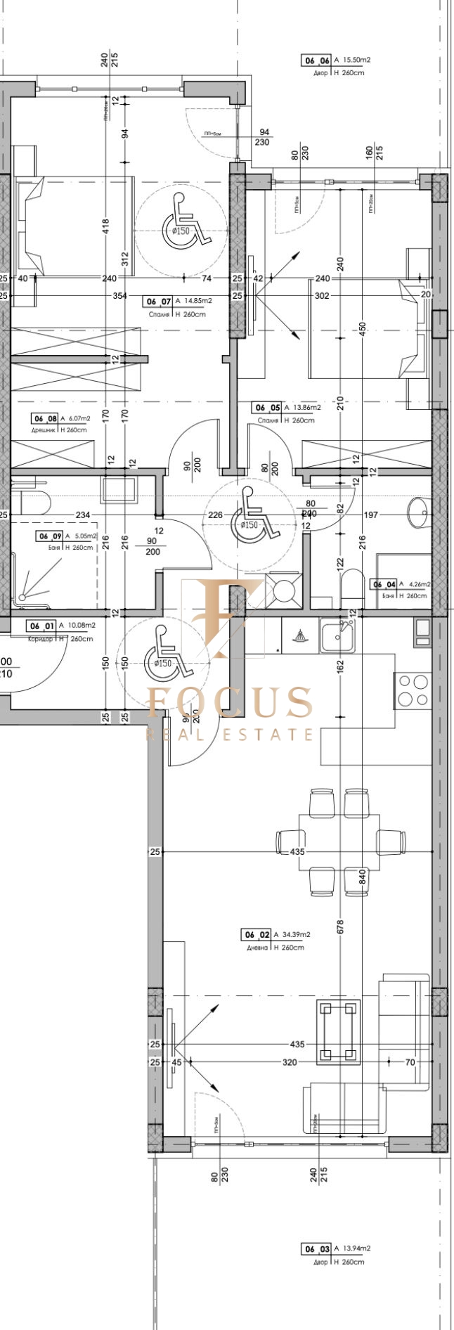
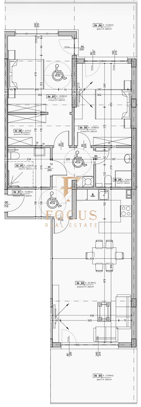
Площ: 152 кв.м
Изложение: север-юг
Етаж: партер/5
Разпределение: антре, дневна с кухненски бокс, две спални, две бани с тоалетни, дрешник и собствен двор.
Апартаментът предлага простор, функционално разпределение и директен достъп до двор, което създава усещане за къща в града. Подходящ е както за семейно жилище, така и за инвестиция.
Комплексът е с модерна архитектура и висок клас изпълнение, разположен в спокойна среда с бърз достъп до града.
Предимства:
- собствен двор
- „умен дом“ система
- контролиран достъп
- озеленени площи и зони за отдих
- детски площадки и фитнес на открито
- търговски обекти и услуги
- подземно паркиране с опция за зарядни станции
Имотът съчетава спокойствие, пространство и съвременен начин на живот.
За повече информация и огледи, свържете се с нас.
Референтен номер: 57286
| ID | Изображение | Цена | Вид имот | Стаи | Размер | Етаж |
|---|---|---|---|---|---|---|
| 57289 | ![]() | € 100000 (195 583,00 лв.) | Двустаен апартамент | 2 | 72 m2 | Партер |
| 57288 | ![]() | € 145000 (283 595,35 лв.) | Тристаен апартамент | 3 | 117 m2 | 4 |
| 49162 | ![]() | € 275000 (537 853,25 лв.) | Апартамент, Четиристаен апартамент | 4 | 267 m2 | 7 |
| 40418 | ![]() | € 110000 (215 141,30 лв.) | Апартамент, Двустаен апартамент | 2 | 92 m2 |











