Описание
Организация Фокус представя четиристаен апартамент в модерен жилищен комплекс в кв. Христо Смирненски, гр. Пловдив!
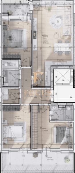
Апартаментът е с обща площ от 136,85 кв.м. със следното разпределение: антре, хол с кухненски бокс, три спални, две бани с тоалетни, склад и две тераси – 3,74 кв.м., 15,71 кв.м.
Изложението е изток-запад.
Имотът е ситуиран на 7-ми последен етаж.
Комплексът е със съвременна архитектура и функционални апартаменти, проектирани така, че да отговарят на нуждите на съвременния градски човек. Използвани са само висококачествени материали и модерни технологии, за да се осигурят не просто жилища, а място, което да наречете истински дом!
Всеки квадратен метър е използван смислено – както вътре в дома, така и в общите части. Пространствата са светли, логично организирани и подчинени на комфорта, а зеленината и естествената светлина внасят спокойствие в ежедневието.
Общите части са проектирани с внимание към детайла и усещане за завършеност. Техният дизайн е в пълна хармония с архитектурата на сградата и нейната модерна фасада. Естествени материали, фини линии и елегантни акценти създават усещане за стил и комфорт още от прага. Пространствата са едновременно представителни и уютни – визитната картичка на дома. Защото впечатлението започва още от входа.
За повече информация и огледи не се колебайте да се свържете с нас!
Референтен номер: 51095
| ID | Изображение | Цена | Вид имот | Стаи | Размер | Етаж |
|---|---|---|---|---|---|---|
| 58667 | ![]() | € 100424 (196 412,27 лв.) | Апартамент, Двустаен апартамент | 2 | 74 m2 | 5 |
| 58668 | ![]() | € 95511 (186 803,28 лв.) | Апартамент, Двустаен апартамент | 2 | 68 m2 | 7 |
| 51088 | ![]() | € 124133 (242 783,05 лв.) | Апартамент, Тристаен апартамент | 3 | 113 m2 | 7 |
| 51085 | ![]() | € 131063 (256 336,95 лв.) | Апартамент, Тристаен апартамент | 3 | 142 m2 | 7 |












