Описание
Организация Фокус представя самостоятелна къща в жилищен комплекс в с. Марково.
Площ: 250.21 кв.м
Двор: 260 кв.м
Къщата се отличава с модерна архитектура, просторни помещения и функционално разпределение, създадена за комфортен семеен живот.
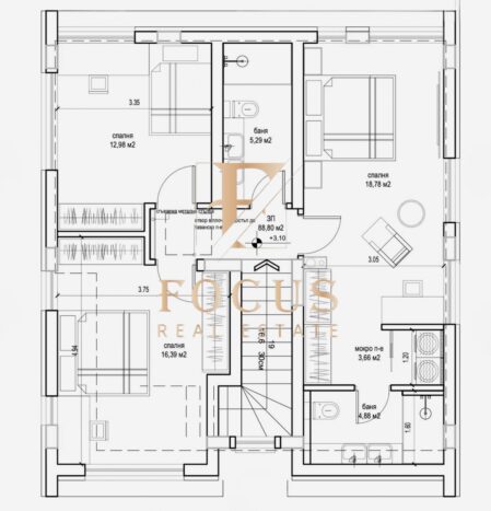
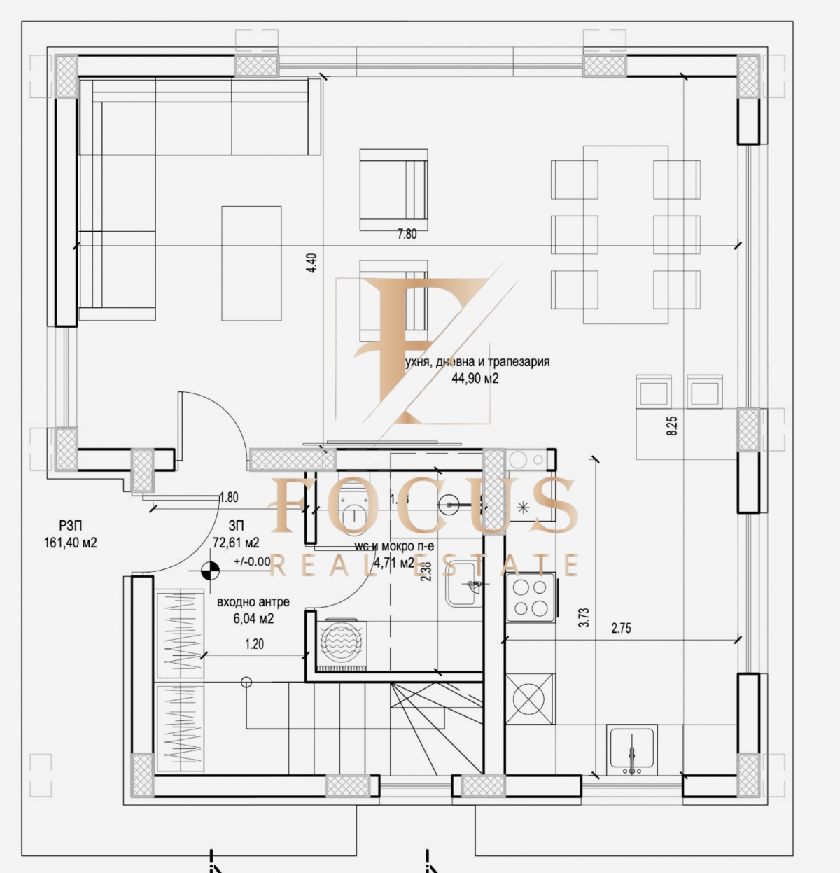
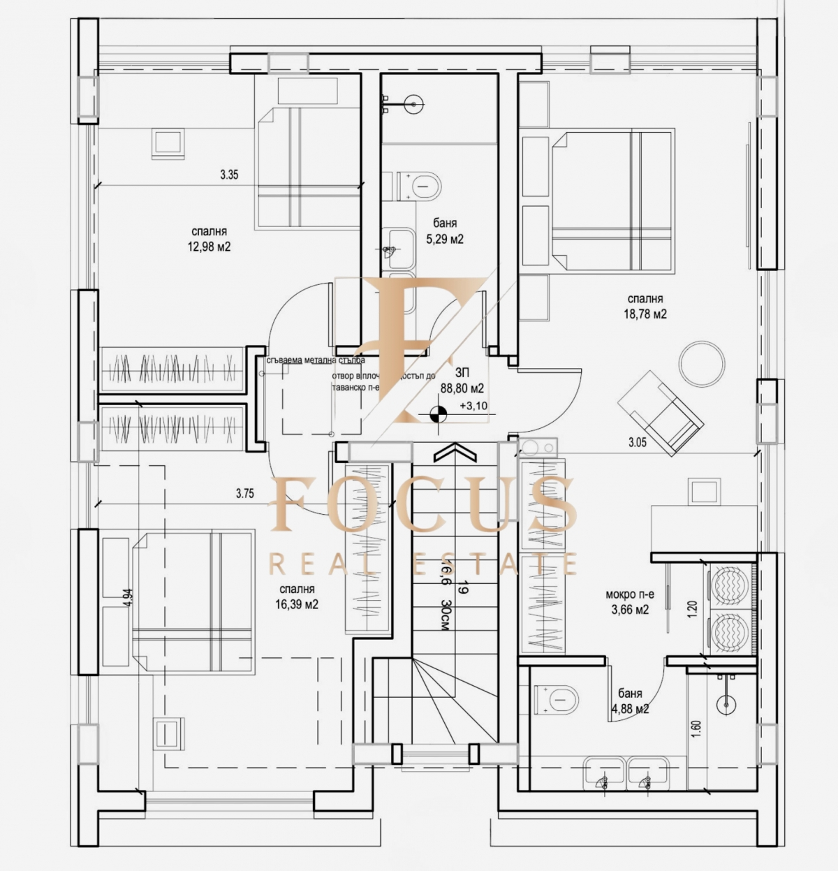
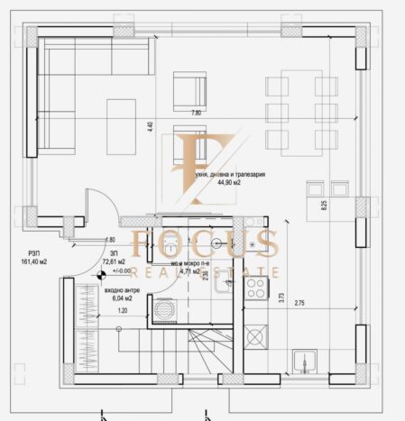
Разпределение:
Първи етаж: входно антре, просторна дневна с кухненски бокс и трапезария излаз към веранда и двор, баня с тоалетна, мокро помещение и склад.
Втори етаж: коридор, три спални, дрешник, две бани с тоалетни, мокро помещение.
Къщата разполага със собствен двор от 260 кв.м, който осигурява пространство, уединение и възможност за обособяване на зона за отдих. Както и две паркоместа.
Имотът съчетава модерна визия, функционалност и усещане за завършен дом.
Комплексът е разположен в спокойна и зелена среда, в подножието на Родопите, с бърз достъп до гр. Пловдив.
Ограничен брой налични къщи!
За повече информация и огледи, свържете се с нас.
Референтен номер: 60892







