ID: 96292
Цена: € 113300
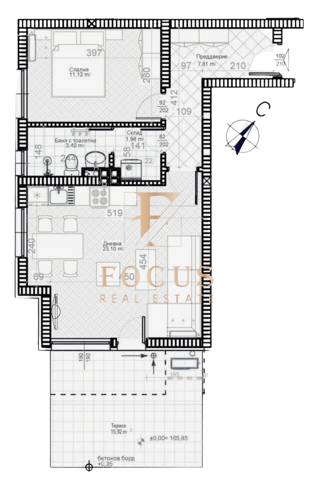
Размер на Имота: 84 m2
Реф ID: 53226
Година на строителство: 2025
Етап/Състояние: На этапе строительства
Вид строителство: Тухла
Етаж №: 1
Етаж Общо: 4
Описание
Имаме удоволствието да ви представим двустаен апартамент в град Пловдив!
Апартаментът е с обща площ от 84 кв.м. със следното разпределение: антре, хол с кухненски бокс, спалня и тераса.
Изложението на имота е запад-юг.
Ситуиран е на 1-ви етаж от общо 4.
Сградата има Акт 14.
Сградата се намира в близост до парк Отдих и култура, Гребната база, множество спортни комплекси, мол Пловдив, УМБАЛ Св.Георги и УМБАЛ Пълмед, както и училища и детски градини.
Не се колебайте да се свържете с нас на посочения телефон за повече информация.
Референтен номер: 53226
За контакти:
Особености
Асансьор
Гараж/Паркомясто
Лизинг
Портиер/охрана
Саниран






