ID: 86574
Цена: € 113373
Размер на Имота: 97 m2
Реф ID: 50143
Година на строителство: 2026
Етап/Състояние: На этапе строительства
Вид строителство: Тухла
Етаж №: 3
Етаж Общо: 5
Описание
ЦЕНА ПО-НИСКА ОТ ТАЗИ НА ИНВЕСТИТОРА!
Организация Фокус ЕКСКЛУЗИВНО представя тристаен апартамент в квартал Коматево, град Пловдив!
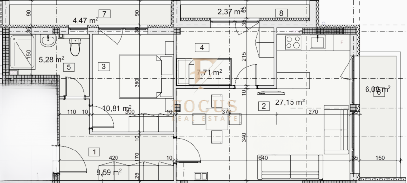
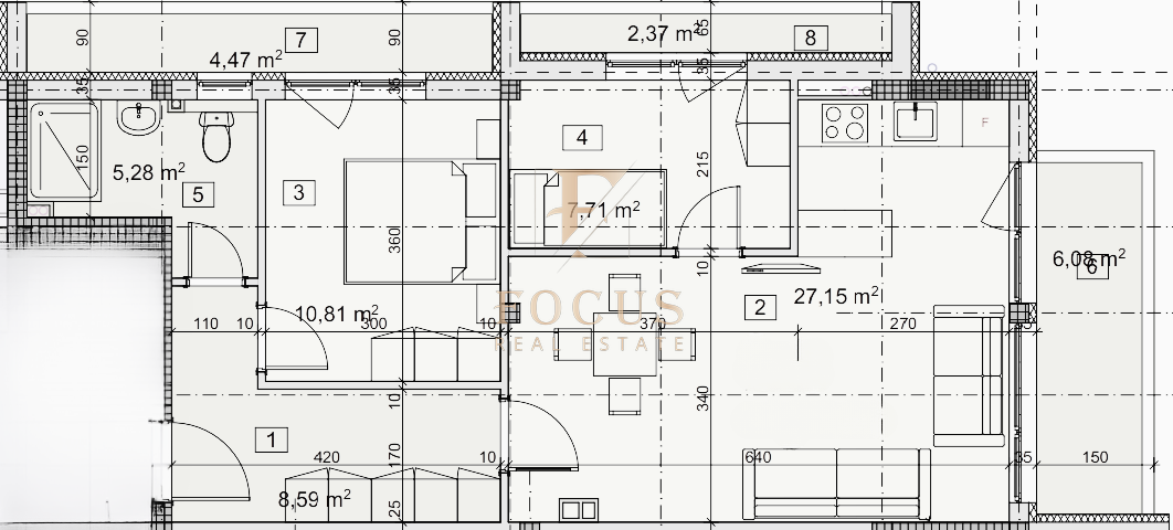
Апартаментът е с обща площ от 96,90 кв.м. със следното разпределение: антре, хол с кухненски бокс, две спални, баня с тоалетна и три тераси.
Имотът е на 3-ти етаж от общо 5.
Очакван срок за въвеждане в експлоатация – 2026 г.
За повече информация не се колебайте да се свържете с нас!
Референтен номер: 50143
За контакти:
Особености
Асансьор
Панорамна гледка






