Описание
БЕЗ КОМИСИОННА ОТ КУПУВАЧ!
Организация Фокус има удоволствието да ви представи самостоятелна двуетажна къща в затворен комплекс в с. Марково.
Площ на къщата: 456,54 кв.м
Двор: 385,11 кв.м
Допълнително: двоен гараж, паркомясто и басейн
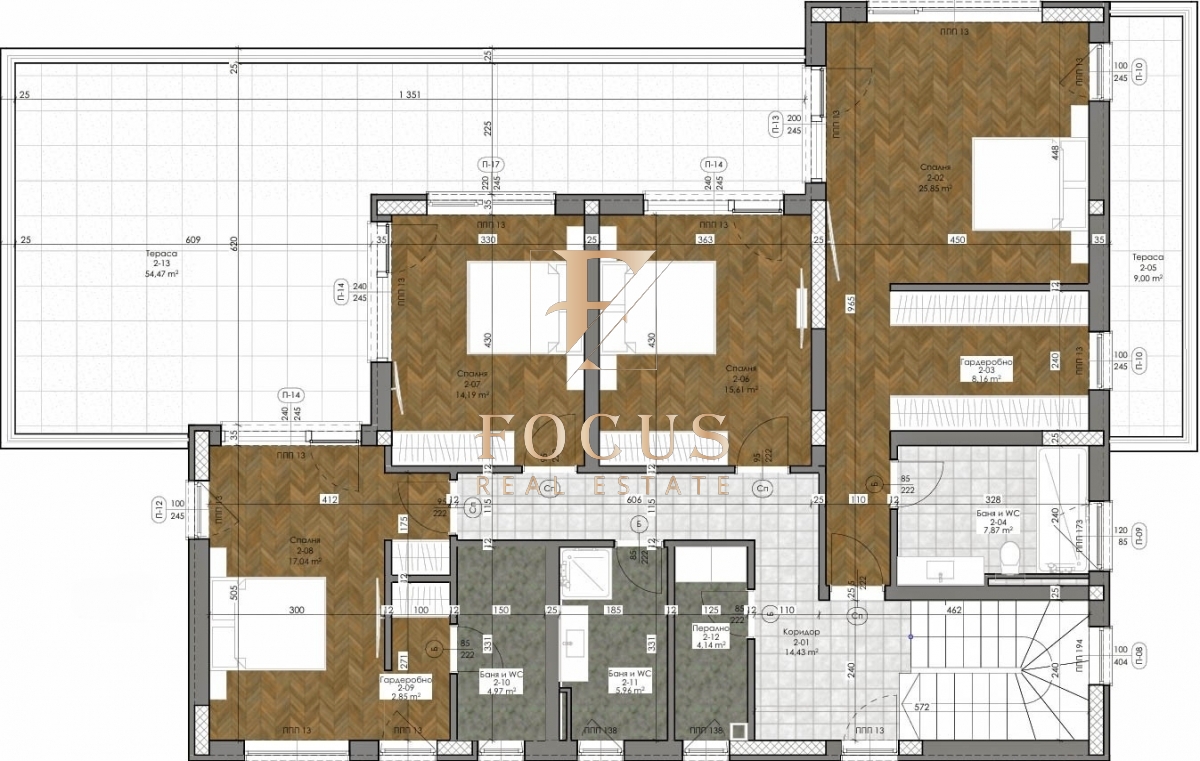
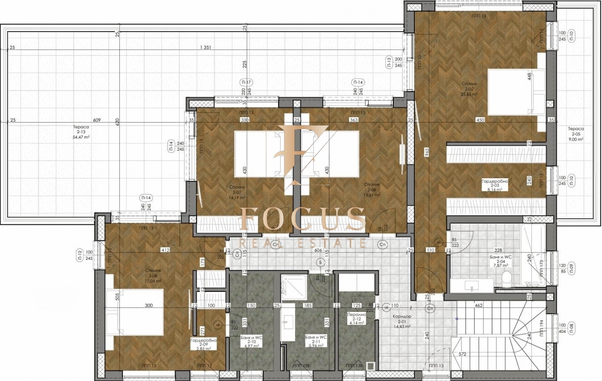
Разпределение:
Първи етаж – двоен гараж с топла връзка, коридор, просторна дневна с кухненски бокс, тоалетна и веранда – 48,43 кв.м.
Втори етаж – коридор, четири спални, три бани с тоалетни, две дрешника, мокро помещение и две тераси.
Имотът е част от затворен комплекс, разположен в подножието на Родопите – една от най-предпочитаните локации около Пловдив, съчетаваща спокойствие, чист въздух и бърз достъп до града.
Къщата впечатлява с простор, функционално разпределение и отлични удобства за съвременен семеен живот – собствен двор, басейн, двоен гараж и допълнително паркомясто.
В комплекса предлагаме и други къщи с различни параметри – редови къщи, както и триетажна къща, което дава възможност на бъдещите собственици да изберат имот според своите нужди и предпочитания.
Очакван срок за въвеждане в експлоатация – края на 2026 г.
За повече информация и организиране на оглед, свържете се с нас.
Референтен номер: 49963











