Описание
Организация Фокус има удоволствието да ви представи двуетажна къща в затворен комплекс в село Марково!
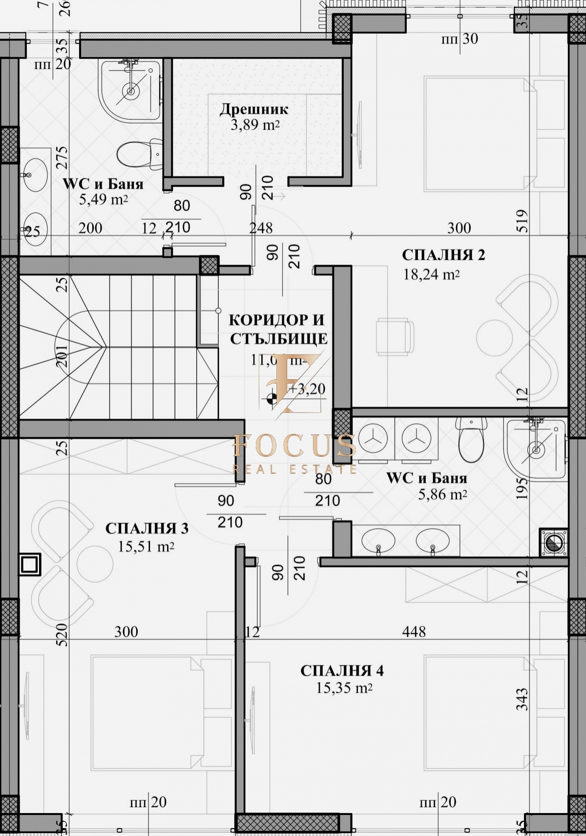
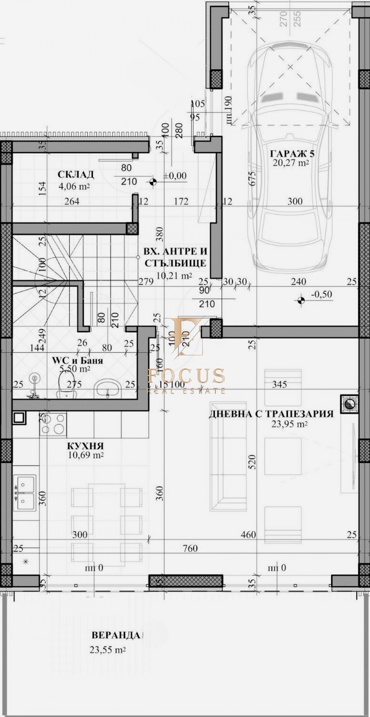
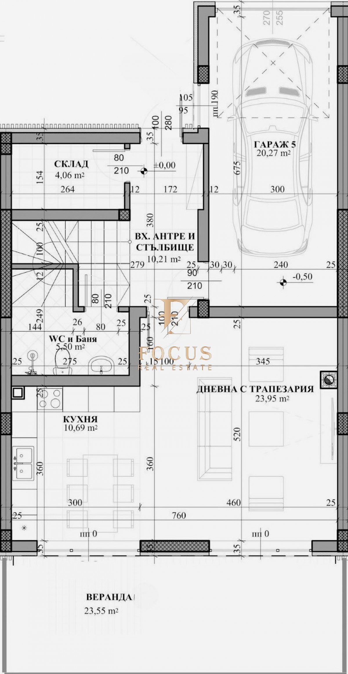
Къщата е с обща площ от 177,26 кв.м. със следното разпределение:
– първи етаж: антре, дневна с трапезария, кухненски бокс, баня с тоалетна, склад, гараж с топла връзка, веранда – 23,55 кв.м.
– втори етаж: коридор, три спални, две бани с тоалетни, дрешник, мокро помещение и две тераси.
Комплексът е разположен в ’полите’ на Родопите с отлична локация и спокойна атмосфера, само на няколко километра от Пловдив!
Не се колебайте да се свържете с нас за оглед и въпроси!
Референтен номер: 50634







