ID: 91309
Цена: € 250000
Размер на Имота: 234 m2
Реф ID: 52049
Година на строителство: 2026
Етап/Състояние: На этапе строительства
Вид строителство: Тухла
Етаж №: 0
Етаж Общо: 2
Описание
Организация Фокус има удоволствието да ви представи двуетажна къща в жилищен комплекс в село Рогош, област Пловдив!
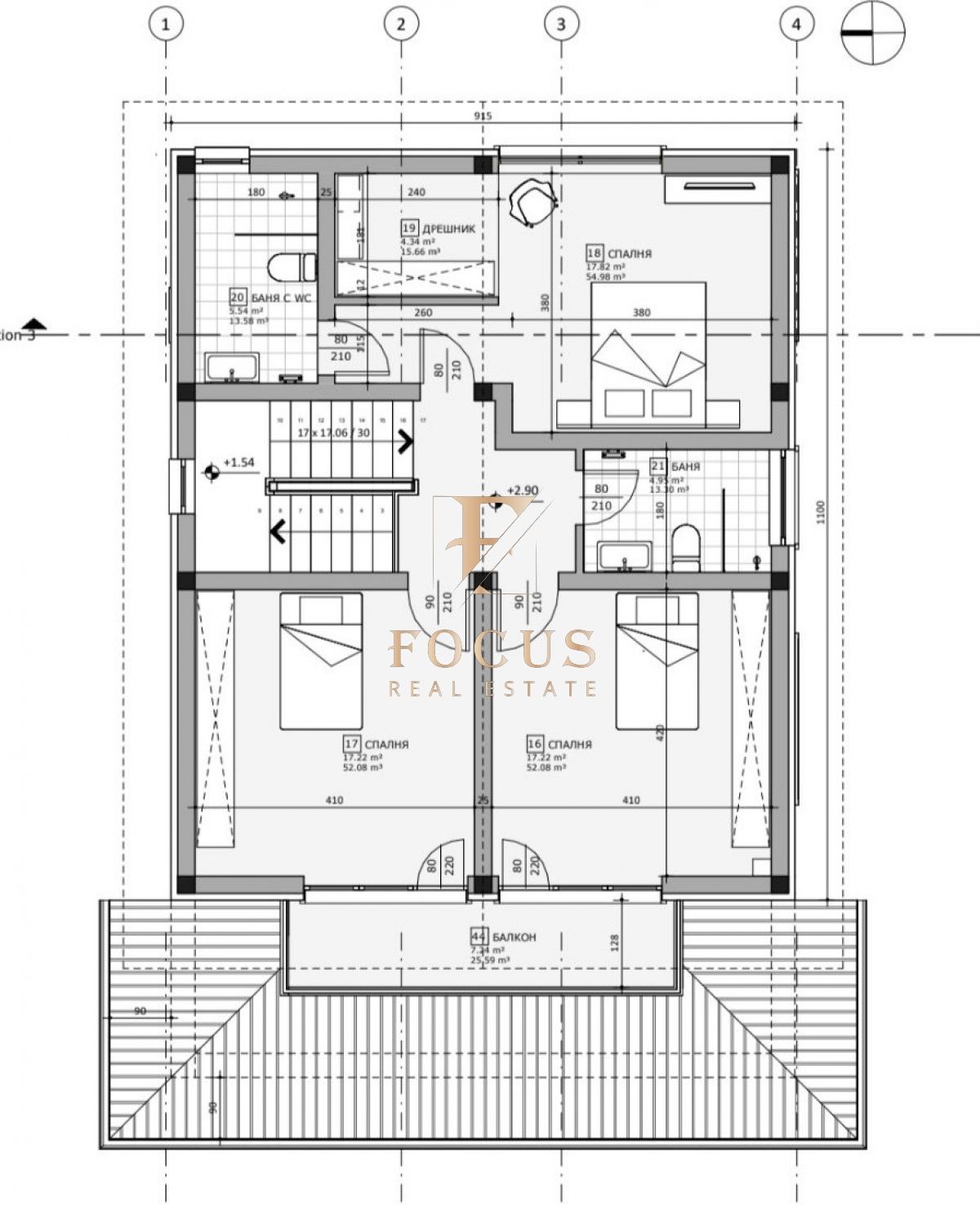
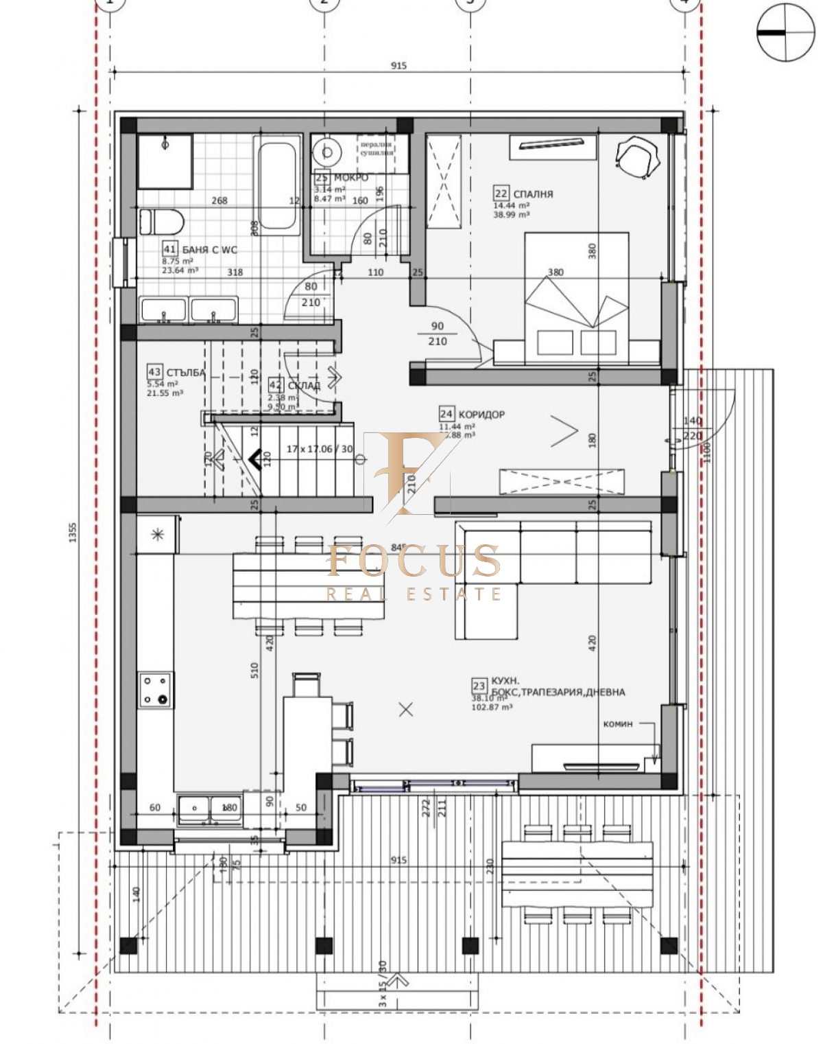
Къщата е с обща квадратура 234 кв.м. като има следното разпределение:
– първи етаж, който е 124 кв.м. – антре, хол с кухненски бокс, спалня, баня с тоалетна. мокро помещение и веранда – 30 кв.м.;
– втори етаж, който е 110 кв.м. – антре, три спални, гардеробна, две бани с тоалетни и тераса.
Към имота има двор – 396 кв.м.
За повече информация и огледи, ни позвънете на посоченият телефон.
Референтен номер: 52049
За контакти:
Особености
Вода
Канализация
Самостоятелна








