Описание
Организация Фокус има удоволствието да ви представи двуетажна къща в затворен комплекс в село Марково!
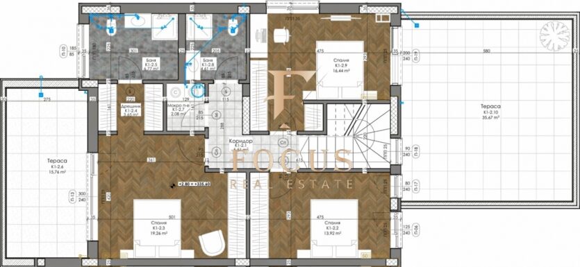
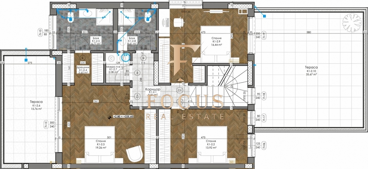
Къщата е с обща площ от 297.99 кв.м. със следното разпределение:
– първи етаж: двоен гараж с топла връзка, коридор, хол с кухненски бокс, тоалетна и веранда – 18,30 кв.м.;
– втори етаж: коридор, три спални, две бани с тоалетни, дрешник, мокро помещение и две тераси.
Към имота има двор – 163,24 кв.м.
Очакван срок за въвеждане в експлоатация – в края на 2026 година.
Комплексът е разположен в ’полите’ на Родопите с отлична локация и спокойна атмосфера, само на няколко километра от Пловдив!
Не се колебайте да се свържете с нас за оглед и въпроси!
Референтен номер: 49959









