Описание
Организация Фокус има удоволствието да ви представи двустаен апартамент в жилищен комплекс в квартал Христо Смирненски, град Пловдив!
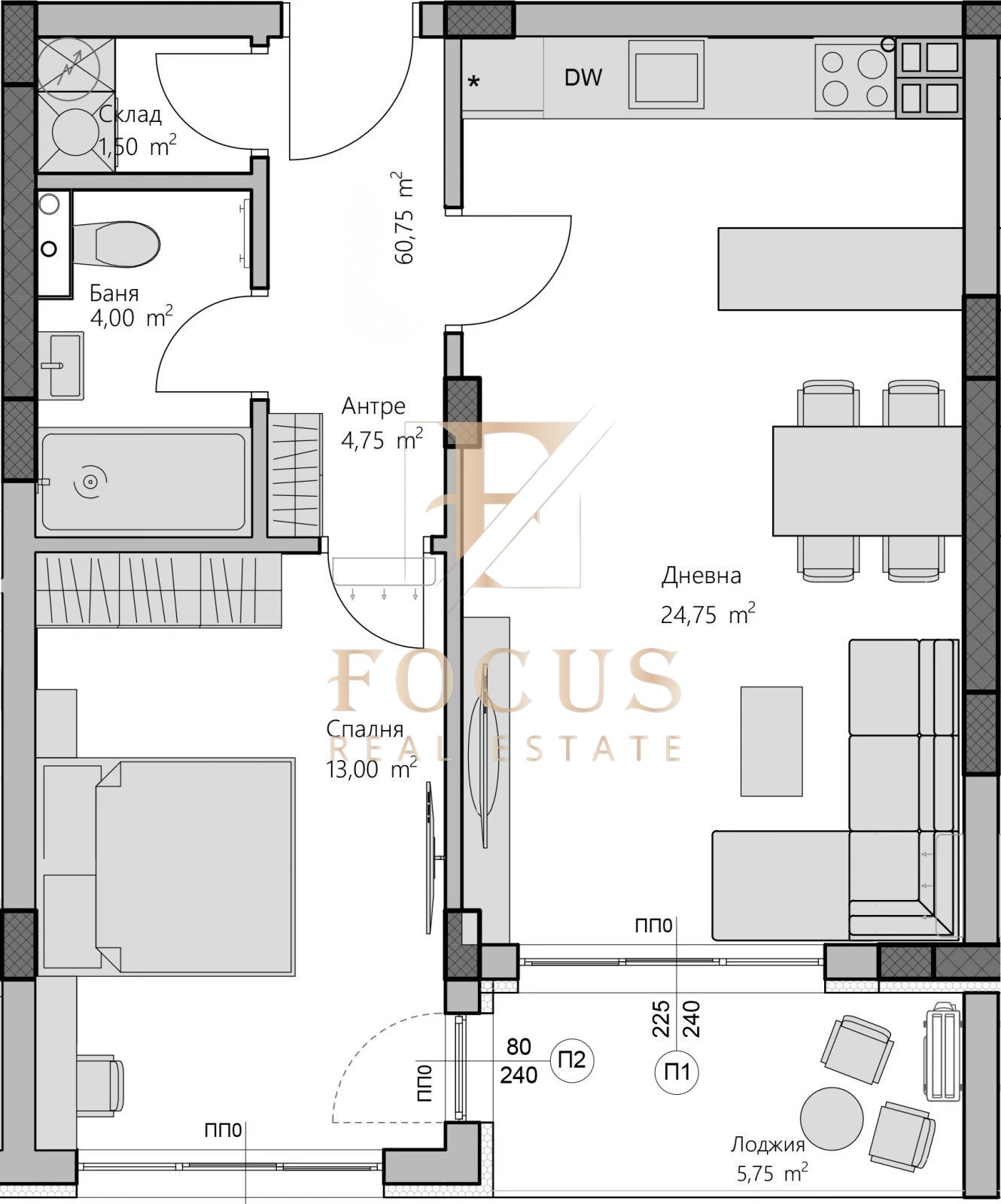
Апартаментът е с обща площ от 71,75 кв.м. със следното разпределение: антре, хол с кухненски бокс, спалня, баня с тоалетна, склад и тераса.
Изложението на имота е юг-изток.
Ситуиран е на 2-ри етаж от общо 10.
Двете сгради са проектирани с внимание към детайла, като предлагат балансирано пространство между динамиката на града и спокойствието на дома. Всяко жилище е създадено с мисъл за светлина, простор и практичност, за да носи усещане за престиж.
Създадени са с идеята – да бъде мястото, в което усещаш, че си ”у дома”. Не просто физическо пространство, а вътрешно състояние на баланс между средата, в която живееш, и начина, по който се чувстваш в нея. С концепция за съвременен градски живот, съчетаваща комфорт, естетика и функционалност.
Партерният етаж на сградите е предвиден за индивидуални гаражи. Над него, от първи до девети етаж, са разположени жилищните етажи, които предлагат разнообразие от двустайни, тристайни и четиристайни апартаменти.
Локацията осигурява бърз и лесен достъп до основни пътни артерии, търговски зони, образователни институции и зелени площи. Разположението комбинира динамиката на града със спокойствието на добре планирана жилищна зона.
Паркирането е подсигурено с подземни и наземни паркоместа, както и гаражи.
Сградата е с Акт 14, а очакваният срок за въвеждане в експлоатация е октомври 2027 година.
За огледи и въпроси, не се колебайте да ни се обадите!
Референтен номер: 56363
| ID | Изображение | Цена | Вид имот | Стаи | Размер | Етаж |
|---|---|---|---|---|---|---|
| 56380 | ![]() | € 156990 (307 045,75 лв.) | Апартамент, Тристаен апартамент | 3 | 105 m2 | 3 |
| 56377 | ![]() | € 137295 (268 525,68 лв.) | Апартамент, Тристаен апартамент | 3 | 100 m2 | 2 |
| 56376 | ![]() | € 149265 (291 936,96 лв.) | Апартамент, Тристаен апартамент | 3 | 100 m2 | 2 |
| 56371 | ![]() | € 134250 (262 570,18 лв.) | Апартамент, Тристаен апартамент | 2 | 90 m2 | 8 |
| 56369 | ![]() | € 173970 (340 255,75 лв.) | Апартамент, Тристаен апартамент | 3 | - | 2 |
| 56366 | ![]() | € 126225 (246 874,64 лв.) | Апартамент, Двустаен апартамент | 2 | 84 m2 | 4 |
| 56365 | ![]() | € 97875 (191 426,86 лв.) | Апартамент, Двустаен апартамент | 2 | 65 m2 | 2 |
| 56361 | ![]() | € 134250 (262 570,18 лв.) | Апартамент, Двустаен апартамент | 2 | 90 m2 | 3 |















