Описание
Организация Фокус представя двуетажна редова къща в кв. Беломорски, гр. Пловдив – район, предпочитан заради спокойната среда и близостта до града.
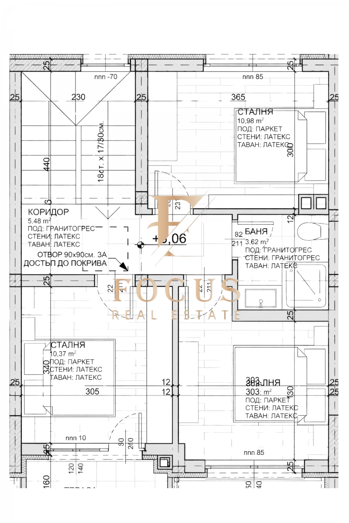
Площ на къщата: 120,70 кв.м
Двор: 35 кв.м
Изложение: запад – изток
Статус: пред Акт 14
Разпределение:
Първи етаж – входно антре, дневна с кухненски бокс, баня с тоалетна и коридор;
Втори етаж – три спални, баня с тоалетна и тераса.
Къщата е част от малък редови комплекс, проектиран с мисъл за практичен и комфортен начин на живот. Компактният двор осигурява лично външно пространство за отдих, без да изисква голяма поддръжка.
Жилището е с двустранно изложение, което позволява добра естествена светлина през целия ден.
Локацията в кв. Беломорски предлага спокойна жилищна среда, чист въздух и удобен достъп до основни пътни артерии и града.
Имотът е подходящ за семейство, което търси нов дом с двор в тих район на Пловдив.
За повече информация и организиране на оглед, свържете се с нас.
Референтен номер: 61502







